This universal vertical hydroponic system is rooted in Flood and Drain (ebb & flow) technology. It makes indoor cultivation simple, adapts to different growing methods, and lets you grow a diverse range of crops efficiently within the same system.
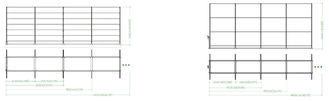
UniFarm S
For leafy greens, microgreens, herbs, and saffron.
UniFarm L
For larger crops like tomatoes and peppers.
Designed to be user-friendly for beginners. The flood and drain method acts like a soak-and-drain cycle, making it easy to grow plants indoors without a fuss.
Compatible with various mediums like soilless mixes and rockwool. Can easily switch to a dripping watering system by incorporating dropper settings to meet specific crop needs.
Grow a mix of plants in the same system simultaneously. The flexibility allows growers to optimize cultivation strategies and adjust crop styles dynamically to meet market demands.
| UniFarm S | UniFarm L |
|---|---|
| Suitable for all kinds of dwarf plants with growth conditions similar to leafy greens. | Suitable for medium-to-large plants such as cucumbers, tomatoes, eggplants, and okra. |
UniFarm S Details:
UniFarm L Details:
Component Specifics:










We understand each project is unique. Our team develops tailored solutions that maximize operational efficiency while minimizing costs. We specialize in metalworking and indoor farming expertise to deliver stable, affordable vertical farming systems.